Humble Urbanism

International Center of Black Lives Matter

Elmhurst Oakland remains one of the most culturally and ethnically diverse neighborhoods in the U.S with predominate percentages of Black, Latino, and Asian populations. Through the 20th century, the decline of the International Blvd. corridor at the hands of transformational auto-freeway systems, to a certain degree, sidestepped the maturing growth of Elmhurst and surrounding communicates. Additionally, other city and legislative policies have perpetuated the hurdles of the Elmhurst neighborhood. Its stagnation and social marginalization cannot be overstated.
The Black Lives Matter movement was founded in Oakland. This project investigates and imagines the big picture, humbly locating the ICBLM (International Center for Black Lives Matter), an economically restorative Arts/Cultural Organization as the central piece of a node of local investment opportunity and community development in the Elmhurst District.

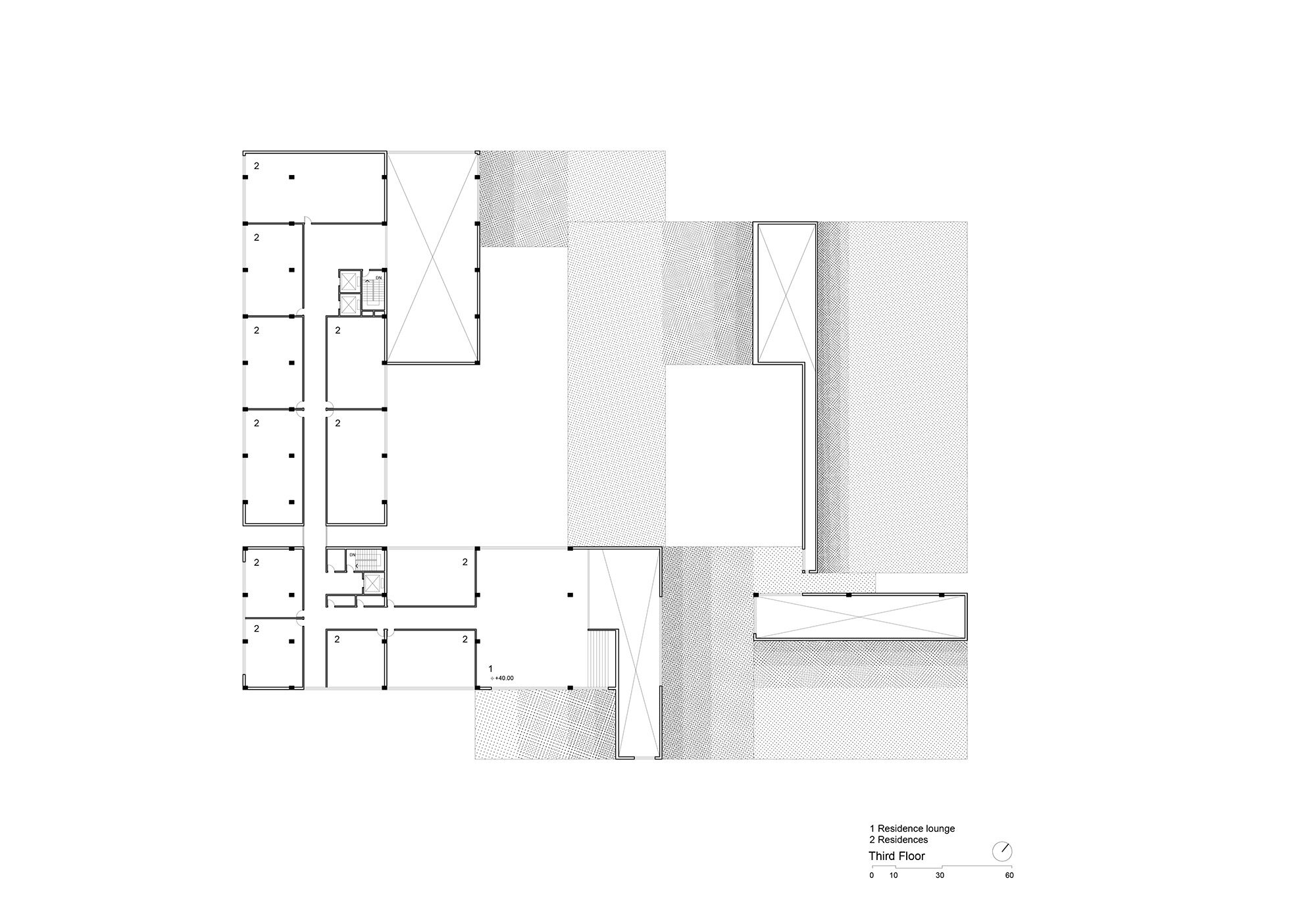
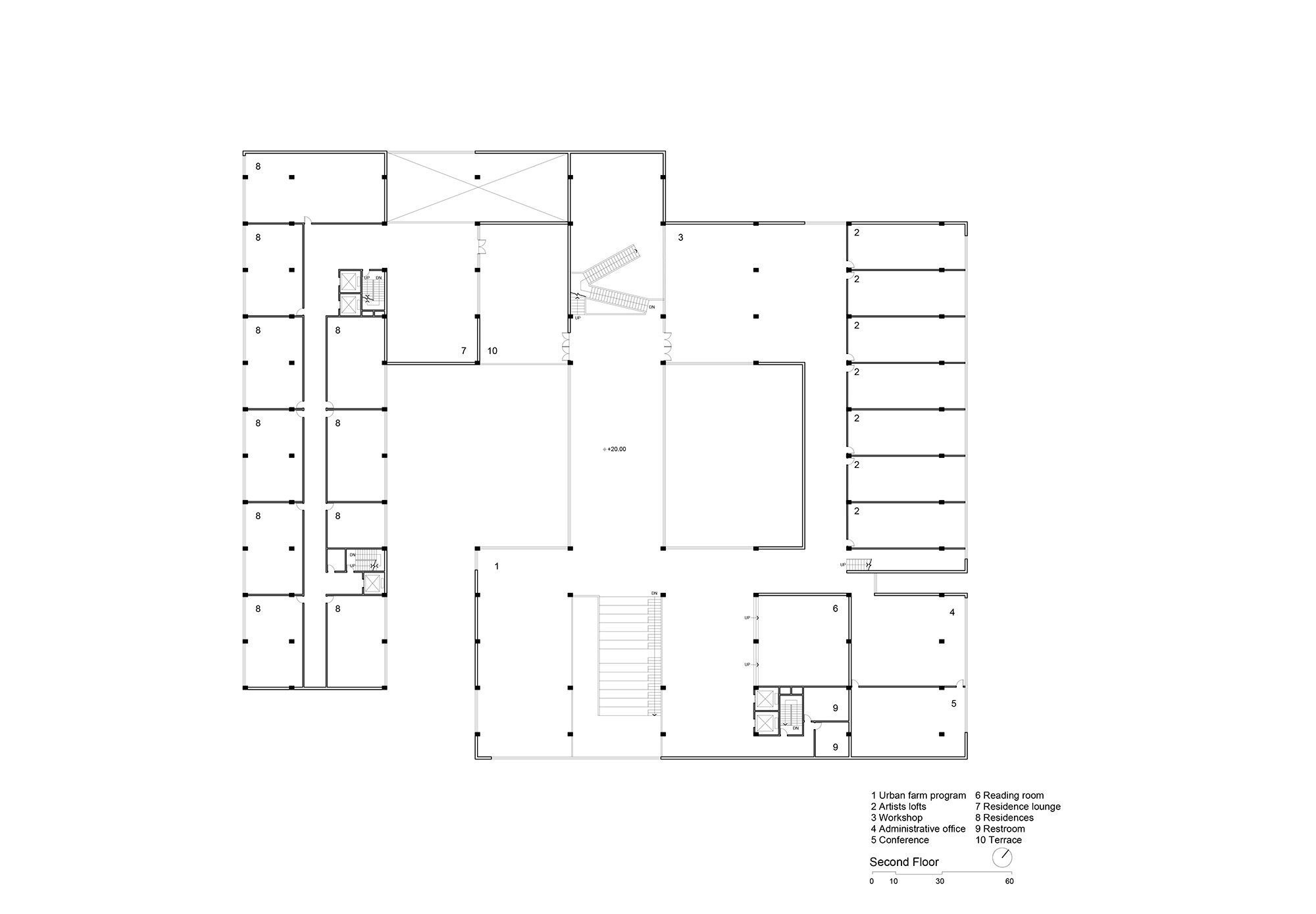
The building is meant to humbly situate itself in the context of small single-family houses and one-story big industrial buildings. It serves as an intermediation between the big and the small, the urban and natural environment. To limit the height of the building and bridge the two levels of the street and the park, the building is sunken into the ground, and a central courtyard is created for events.