
A window to the rural area
Villager Center in Zhangjiakou

Rural B&B hotels are transforming into new colonies for the privileged under the guise of rural regeneration, deepening the divide between cities and villages, as well as rich and poor. Is there another method of accomplishing it?
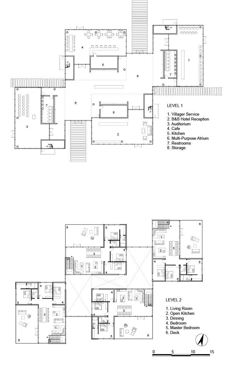
The spatial integration of B&B hotel and village service center helps create more opportunities for communication, and also builds a stage for the village to show itself to the outside world.
This project is located in Zhangjiakou City, with an average annual temperature of 8.3°C and a minimum temperature of -22.6°C. Integrating the B&B hotel with the village service center helps to reduce the surface exposed to the severe cold environment.



By superimposing and integrating the B&B hotel and the village service center, the building allows the village to showcase itself to the world while enabling B&B guests to participate in and integrate into rural culture. The multi-purpose atrium serves as an informal communication space surrounded by the core function space, similar to a village street, providing villagers with a place to relax, read, exercise, and gather. It also serves as a showcase for rural agricultural products, handicrafts, and other forms of cultural heritage.


